豪邸の内覧受付中!一度は見ておきたい一戸建て住宅☆
2025/12/22
こんにちは!株式会社ユー・コーポレーションです!
昨晩は家族でM‐1を。
芸人大好き中坊は憧れのまなざし。
芸人さんになる為にはどんな進路をたどればいいのか聞かれました。
かなり勉強しないと無理だ。
M-1まで登りつめる者は一握り。
天才に近い。
そう答えるとさらに憧れが増して逆に笑えなくなっておりました。
平成を青春で過ごした私にとっての芸人は2丁目芸人。
なんば二丁目劇場の前で出待ちをした芸人は数知れず。そして今では大御所。
まさに昨晩M-1の審査員をしていた人たちです。
数多くの芸人さんの出待ち時に握手と写真を頼んだ高校の頃。
神対応だたのは断トツで千原Jr.さん。
別格でしたね。語りだすと長くなりそうなのでこの辺で、、、
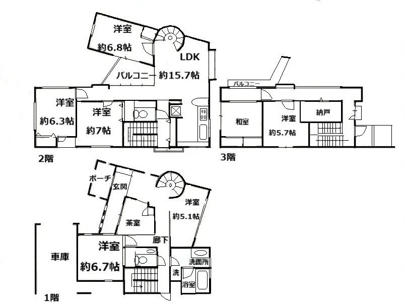
さて本日の物件は何といっても豪邸!
和室にロフトに螺旋階段!
一見の価値あり物件です。
6部屋+和室+茶室の間取りです!
【中古】
価格:4,980万円
所在地:茨木市南春日丘七丁目4-15
交通:大阪モノレール『阪南大学病院前』駅 徒歩5分
土地面積:194.66㎡
建物面積:延べ193.38㎡
1階:66.37㎡
2階:82.55㎡
3階:44.46㎡
建物構造:木・鉄筋コンクリート造アルミニュウム板葺
間取り:7LDK
築年月:2001年8月
都市計画:市街化区域
地域地区:法22条区域
用途地域:第一種低層住居専用地域
建蔽率:50%
容積率:100%
その他の法令上の制限:まちなみ景観区域、宅地造成等工事規制区域
現況:空家
引渡時期:相談
◇2022年リフォーム
・外壁塗装
・1階洋室/フローリング・クロス貼替
・洗面所/クッションフロア貼替
・2階洋室/遮音パネル施工/クロス貼替
・3階廊下/カーペット貼替
◇2025年7月リフォーム
・全室クロス貼替
・ハウスクリーニング
※絶賛内覧受付中です!お問合せお待ちしております!
----------------------------------------------------------------------
株式会社ユー・コーポレーション
〒540-0029
大阪府大阪市中央区本町橋1-8
電話番号 : 0120-78-5155
東大阪市で安心の戸建て売却
東大阪市で納得の不動産購入
----------------------------------------------------------------------
