不動産
東大阪市金岡【中古戸建】
東大阪市金岡【中古戸建】
リフォーム完成です!!!
スーパーサンコーまで徒歩1分!
【中古戸建】
価格:2,480万円
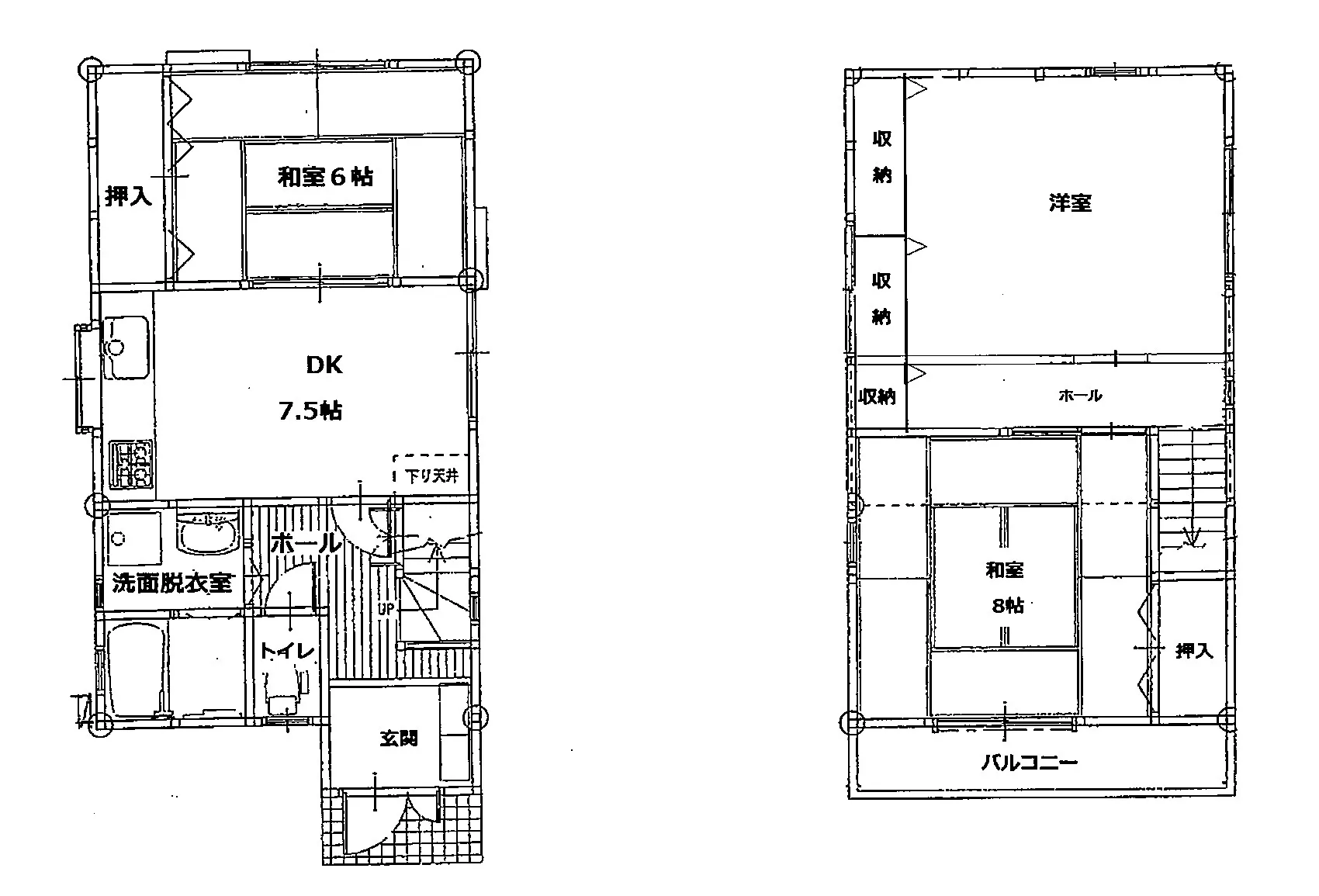
所在地:東大阪市金岡2丁目11-4
土地面積:61.88㎡
建物面積:延べ74.52㎡
1階:38.07㎡
2階:36.45㎡
建物構造:木造スレート葺
地上階:2階
築年月:平成14年11月
都市計画:市街化区域
地域地区:準防火
用途地域:第一種住居地域
建蔽率:60%
容積率:200%
現況:空家
取引態様:売主
不動産
東大阪市金岡【中古戸建】
リフォーム完成です!!!
スーパーサンコーまで徒歩1分!
【中古戸建】
価格:2,480万円
所在地:東大阪市金岡2丁目11-4
土地面積:61.88㎡
建物面積:延べ74.52㎡
1階:38.07㎡
2階:36.45㎡
建物構造:木造スレート葺
地上階:2階
築年月:平成14年11月
都市計画:市街化区域
地域地区:準防火
用途地域:第一種住居地域
建蔽率:60%
容積率:200%
現況:空家
取引態様:売主
当店でご利用いただける電子決済のご案内
下記よりお選びいただけます。